Exclusivité
Local_professionnel ANGERS

0 pièces - 134.57 m²
299 500 €*
*Honoraires agences inclus
Type de bien
Local_professionnel
Surface totale
134.57 m²
Ascenseur
oui
Interphone
oui
*Prix de vente hors honoraires : 285 000 €
Honoraires 5.09 % de la valeur du bien hors honoraires
Honoraires à charge : Acquéreur
*Nombre de lots de la copropriété 649 dont 108 lots d’habitation.
Charges prévisionnelles : 1907 € / an.
En savoir plus
Découvrez les caractéristiques de ce bien immobilier à vendre
IMMO DE FRANCE OUEST VOUS PROPOSE EN EXCLUSIVITE :
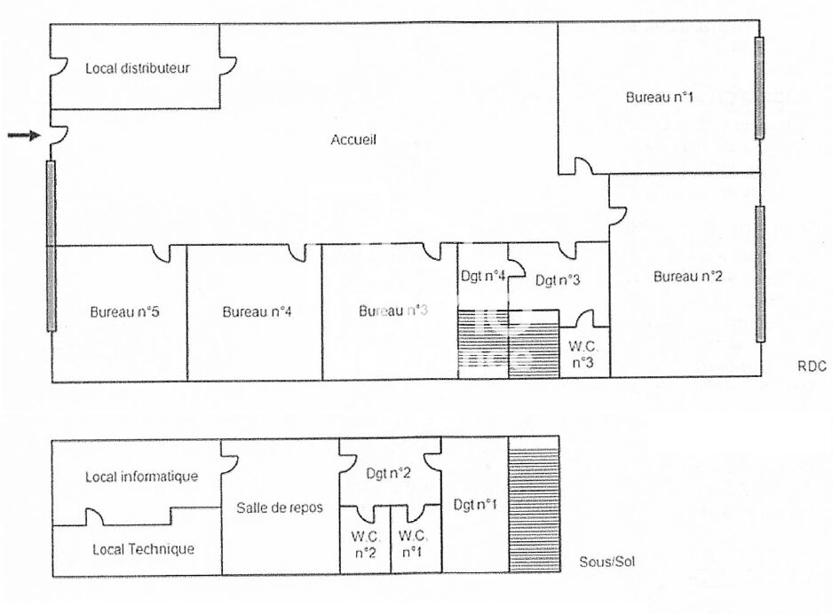
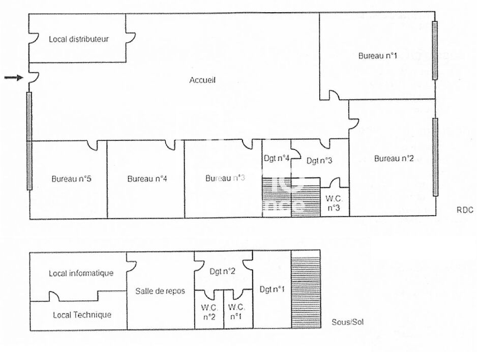
Situé dans le centre ville d’Angers, boulevard Saint Michel, au pied du tramway et des commerces, local commercial d’une superficie totale de 133 m², répartit sur deux niveaux :
– Rez-de-chaussée : vaste espace d’accueil de 45 m², 5 bureaux, wc et local.
– Sous-sol : dégagement, cuisine, local technique.
Excellent état général, vitrine en verre sécurité de 6m avec accès PMR.
Ce local commercial bénéficie d’un emplacement stratégique offrant visibilité et accessibilité. Ideal pour une activité de bureau commercial (assurance, architecte…) ou pour toute profession libérale.
Libre de locataire le 1er janvier 2026.
Diagnostic de performances
énergétiques
énergétiques
G
Date de réalisation : 19/09/2025
Classe énergie
- G
541 kWh/m².an
Classe climat
- C
C kg CO2/m².an
Les informations sur les risques auxquels ce bien est exposé sont disponibles sur le site Géorisques.
Charges de copropriété
1907 € / an
Nombre de lots
649 habitations
Découvrez
l'environnement
Restaurants
Ecoles
Transports en communs
Commerces
* Le bien recherché se situe dans la zone en couleur.
Découvrez nos sélections
Promotion immobilière, achat, location, terrain à bâtir